ПОЗВОНИТЬ +7 495 960 34 54

Коттедж в поселке Павловы Озера

ЛОТ 82310 П
location_on Новорижское ш. (18 км)

Продажа нового загородного дома площадью 225 кв.м. Новорижское шоссе, 23 км от МКАД. Коттеджный поселок Павловы озера. Этот современный кирпичный особняк – воплощение стиля и комфорта! Внутри вас ждет дизайнерский ремонт, выполненный из материалов высочайшего качества, где каждая деталь продумана до мелочей. Дышите полной грудью благодаря приточно-вытяжной системе вентиляции с рекуперацией воздуха, а о прохладе позаботятся кондиционеры мультисплит-системы Haier. Представьте, как после насыщенного дня вы расслабляетесь в собственной сауне из термолипы с печью Karina Nova – это истинное блаженство! На участке расположенном в 2 минутах ходьбы от центрального озера 10 соток раскинулся изумрудный газон, а зона отдыха манит провести время на свежем воздухе. На участке 10 соток выложен газон и обустроена зона для отдыха. Не упустите свой шанс стать обладателем этого уникального дома, просмотр для Вас в любое время. Гараж на 1 м/м. Все коммуникации центральные.

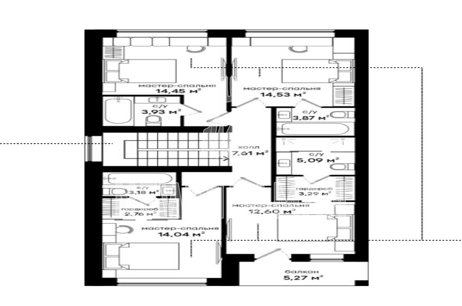
Планировка:
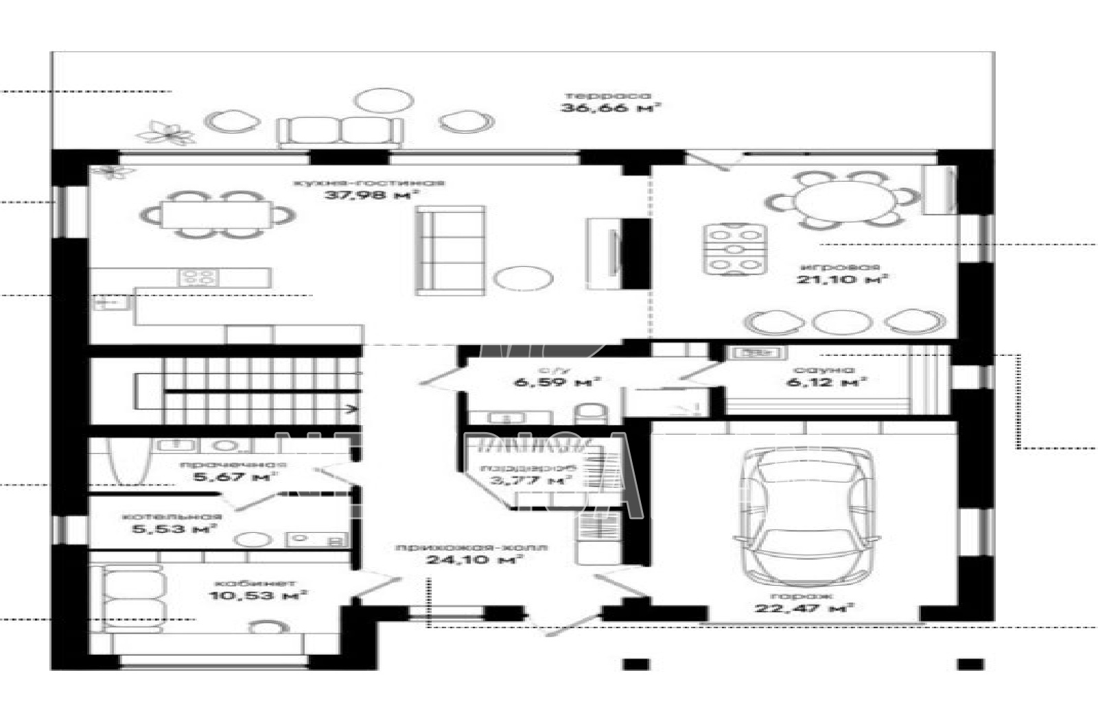
1 этаж - холл, кухня-гостиная-столовая с выходом на крытую веранду, спальня, с/у, сауна, постирочная, котельная, гараж на 1 м/м,
2 этаж - 4 спальни с с/у и гардеробными.

$
£
1.380.885 $
6.137 $ / м2
105.000.000
466.667 / м2
1.028.363 £
4.571 £ / м2
1.182.568 €
5.256 € / м2
Позвонить
Детали лота:
Площадь общая:
225 м2
Площадь участка:
10 соток
Количество спален:
4
Состояние:
с отделкой
посмотреть планировку
Похожие предложения:
вы можете отрегулировать показ похожих этими кнопками
close