ПОЗВОНИТЬ +7 495 960 34 54

Коттедж в поселке Агаларов Эстейт

ЛОТ 82509 Е
location_on Новорижское ш. (20 км)

Продажа загородного дома общей площадью 850 кв.м. Новорижское шоссе, 20 км от МКАД. Коттеджный поселок Агаларов Эстейт. Коттедж построен в 2 этажа. В строительстве и отделке использованы натуральные материалы. В доме установлена система Умный дом, голосовое управление, зонированная аудиосистема в доме и на террасе, система климат контроля, видеонаблюдение. Все жилые зоны оснащены приточно-вытяжной вентиляцией с кондиционированием для максимально комфортного пребывания. Для безопасности дом обеспечен противопожарной и охранной сигнализациями. Дом располагается в тихой части поселка. Уникальный проект выполнен в стиле хайтек. Тщательно продуманы все детали для комфортного проживания. Участок площадью 24 сотки имеет эргономичный дизайн. Территорию украшают более 60 взрослых высоких деревьев: по периметру высажены ели, а сердце участка украсили лиственными деревьями. Установлена многосценарная система подсветки участка. На территории находятся зона отдыха и барбекю.

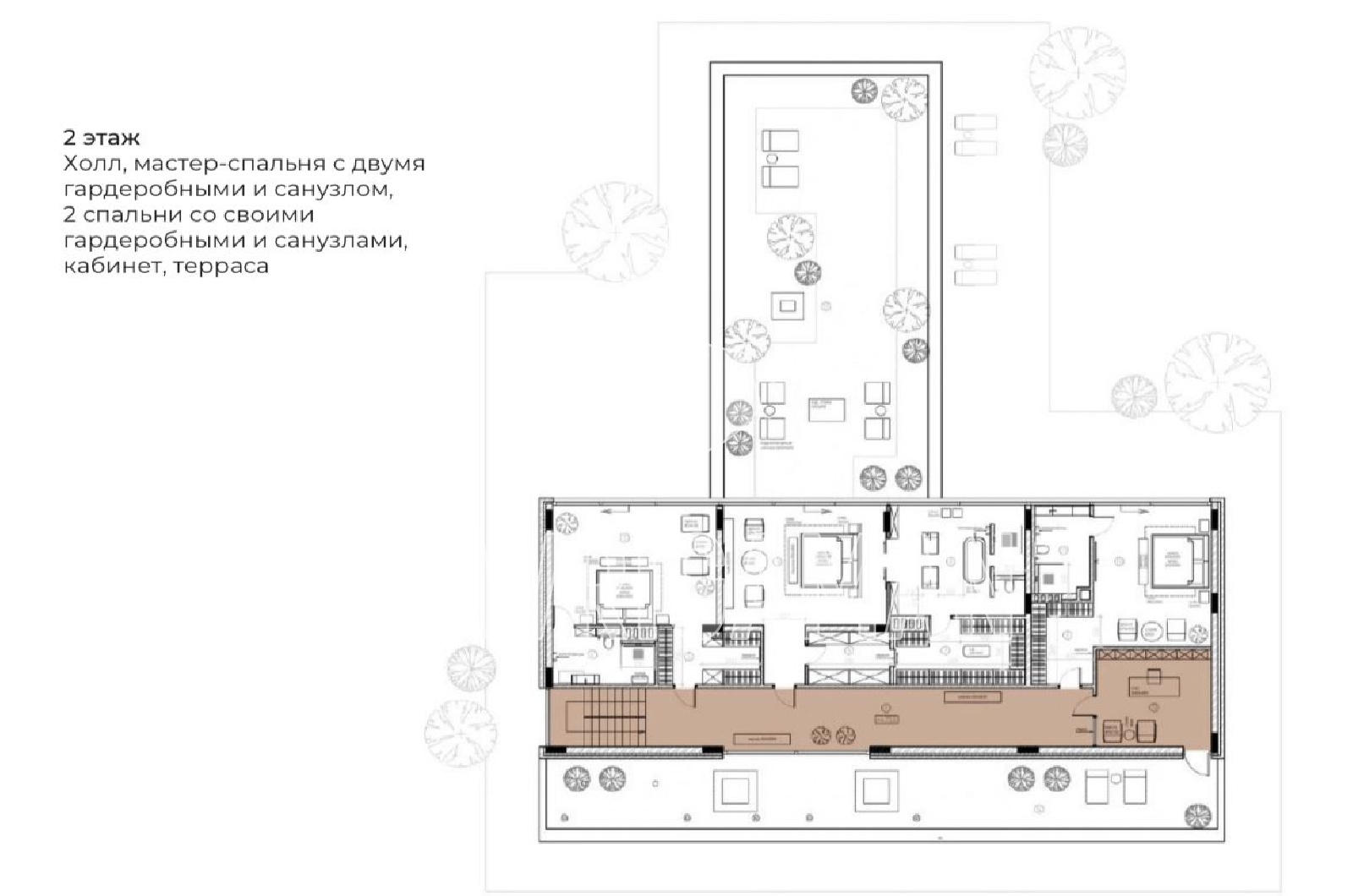
Планировка:

1 этаж - холл, гардеробная, c/у, кухня, гостиная, столовая, техническая кухня, выход на террасу и зону барбекю, спа-блок: бассейн, сауна/хамам, зона
отдыха, душевая, с/у, гостевой блок: спальня, гардеробная, с/у, блок для персонала: спальня, кухня, с/у, гардеробная, 

2 этаж - холл, спальня с 2 гардеробными и с/у, 2 спальни со своими
гардеробными и с/у, кабинет, терраса.

$
£
11.043.149 $
12.992 $ / м2
850.000.000
1.000.000 / м2
8.283.793 £
9.746 £ / м2
9.454.834 €
11.123 € / м2
Позвонить
Детали лота:
Площадь общая:
850 м2
Площадь участка:
24 сотки
Количество спален:
5
Бассейн:
Есть
Сауна:
Есть
Состояние:
с отделкой
Смотреть еще
посмотреть планировку
ondemand_video посмотреть видео посёлка
Поселок на карте
Похожие предложения:
Посёлок Агаларов Эстейт

Коттеджный поселок Агаларов Эстейт - элитный поселок в 20 км от МКАД по Новорижскому шоссе. Площадь поселка 330 гектаров, из которых площадь гольф-поля 70 гектаров. Поселок разбит на 250 живописных участков и домовладений разного типа. Предлагаются участки у воды, у гольф-поля и парковые. Площадь участков  от 20 до 200 соток. Площадь домов  от 500 до 5000 кв.м. Поселок выполнен в едином архитектурном стиле с прозрачными заборами и роскошными домовладениями. На территории поселка протекает река Беляна, что создает уютную атмосферу и великолепные виды. Все центральные коммуникации. Строгая охрана с патрулированием. Внутренняя инфраструктура поселка является уникальной по своему наполнению и не имеет аналогов в России.

Внутренняя инфраструктура: 18-ти луночное гольф-поле мирового уровня TROON GOLF, cамая большая в России академия гольфа, 6 теннисных кортов, бутик-отель, спа-комплекс с большим плавательным бассейном, Крокус фитнес, детский сад Монтесори, пляжный клуб, 3 ресторана, караоке, вертолетная площадка, Фитнес-клуб с закрытыми теннисными кортами, зона развлечений для детей и подростков. Озерная коллекция из 14 озер, водопад.

Внешняя  инфраструктура: Торгово-развлекательный комплекс  Estate Mall c ресторанами, продуктовым базаром, банками, фитнессом, аптекой, салоном красоты, пекарней, винотекой, медицинским центром, караоке Royal bar и многим другим.

Рядом поселки: Резиденция Монолит, Шервуд, Миллениум Парк, Гринфилд, Онегино.

Полное описание
вы можете отрегулировать показ похожих этими кнопками
close