ПОЗВОНИТЬ +7 495 960 34 54

Таунхаус в поселке Парк Фонте

ЛОТ 82712 ЗГ
location_on Новорижское ш. (23 км)

Продажа загородного таунхауса площадью 277 кв.м. Новорижское шоссе, 23 км от МКАД. Коттеджный поселок Парк Фонте. Дом находится в спокойной, приватной части поселка. В таунхаусе выполнен дизайнерский ремонт в современном стиле с использованием премиальных материалов. В интерьере применены натуральный камень, деревянные панели, дорогие столярные изделия и широкоформатный керамогранит. Многоуровневая подсветка подчеркивает архитектуру пространства и создает атмосферу уюта в вечернее время. Дом оснащен современной инженерией: установлены системы приточной вентиляции и центральное кондиционирование Haier, а также система защиты от протечек воды. Дополнительно смонтированы фасадное видеонаблюдение, интернет-сеть и подогрев крыльца и террасы. Таунхаус частично меблирован. В стоимость входит вся встроенная мебель и полностью оборудованная кухня с техникой Kuppersbusch и Liebherr. Санузлы укомплектованы сантехникой премиальных брендов Villeroy & Boch и Allen Brau, что подчеркивает уровень дома. Площадь участка составляет 1,5 сотки.

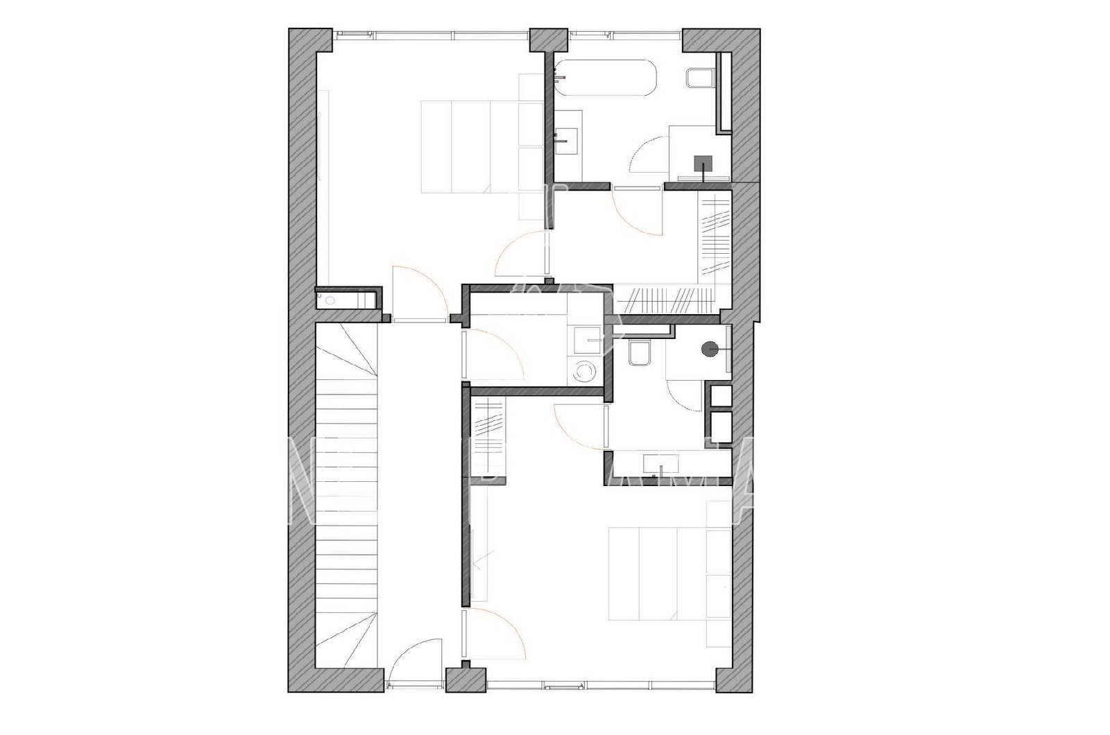
Планировка:

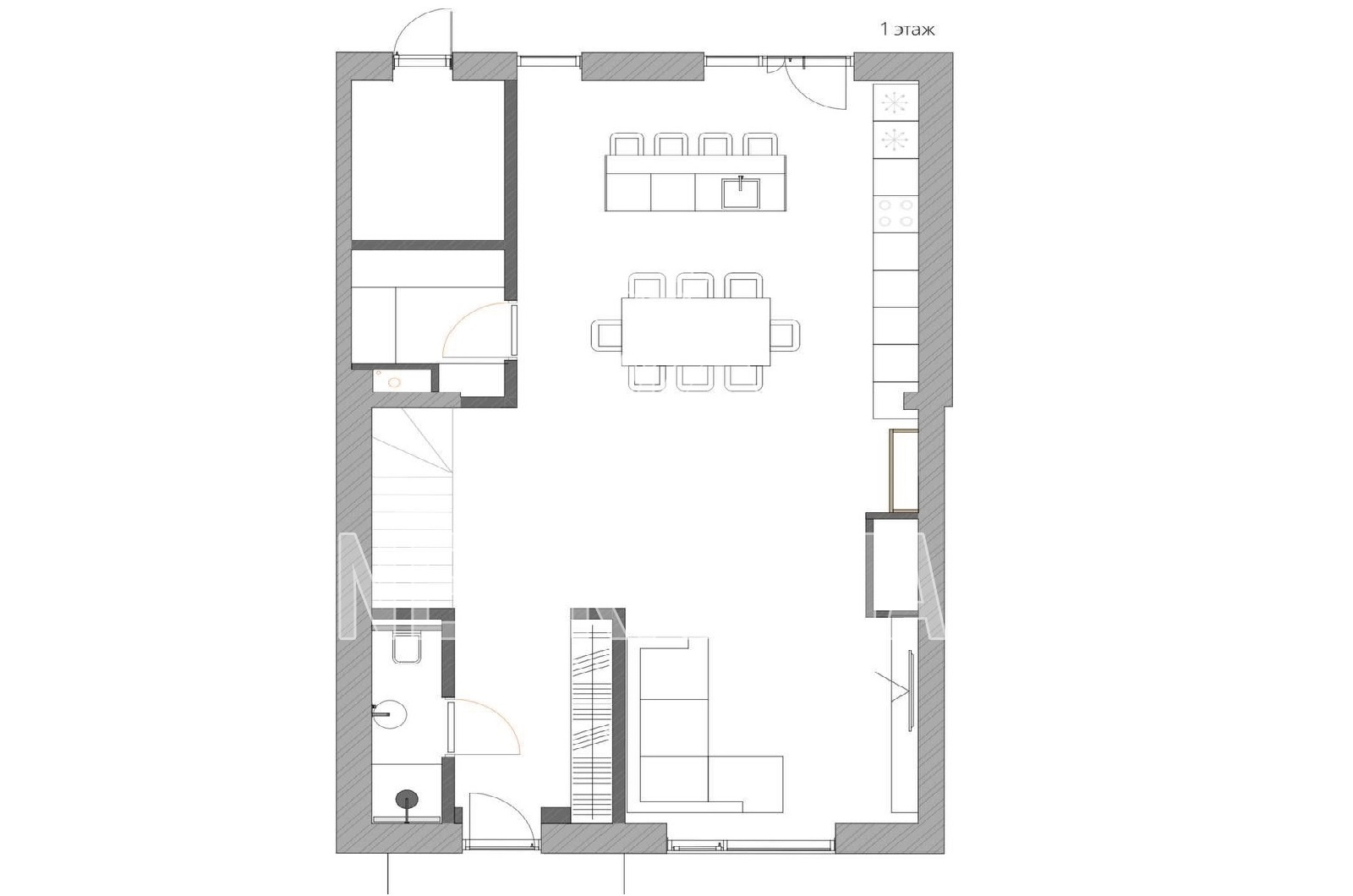
1 этаж - гостиная-кухня-столовая, с/у, бойлерная, кладовая, терраса.

2 этаж - мастер-спальня с 2 гардеробными и ванной комнатой, спальня с
с/у.

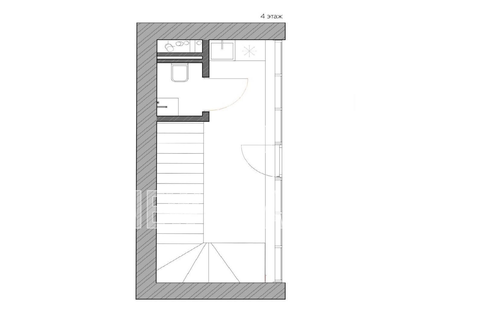
3 этаж - 2 спальни каждая со своей гардеробной и с/у, постирочная.

$
£
1.488.402 $
5.373 $ / м2
120.000.000
433.213 / м2
1.128.604 £
4.074 £ / м2
1.284.187 €
4.636 € / м2
Позвонить
Детали лота:
Площадь общая:
277 м2
Площадь участка:
1.5 сотка
Количество спален:
4
Состояние:
с отделкой
посмотреть планировку
Поселок на карте
Похожие предложения:
Посёлок Парк Фонте

Коттеджный поселок Парк Фонте — это элитный поселок таунхаусов в 27 км по Новорижскому шоссе. На территории поселка 10 Га располагаются 182 3-х этажных таунхауса площадью от 270 до 310 кв.м. на участках от 2 до 9 соток. Все таунхаусы выполнены с панорамным остеклением. Прямолинейная геометрия фасадов эффектно подчеркнута материалами контрастных цветов, форм и фактур.

Внутренняя инфраструктура:
Аутлет Новая Рига, гостевая парковка, детская игровая площадка, зона отдыха с озером, спортивная площадка. Круглосуточная охрана.

Внешняя инфраструктура:
ТЦ Княжий двор, Ломоносовская школа.

Рядом поселки: Агаларов Эстейт

,
Покровский, Риверсайд, Княжье Озеро, Новорижский.

Полное описание
вы можете отрегулировать показ похожих этими кнопками
close